Network CafeLand
[Nhận thông tin] Dự án The Global City
[Nhận thông tin] Dự án The Global City
Không thể tải khả năng nhận hàng tại cửa hàng
Dự án: The Global City
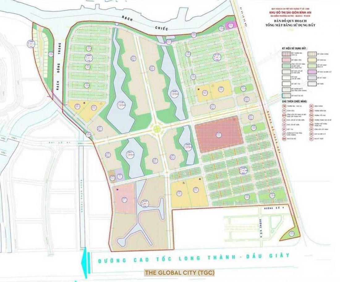
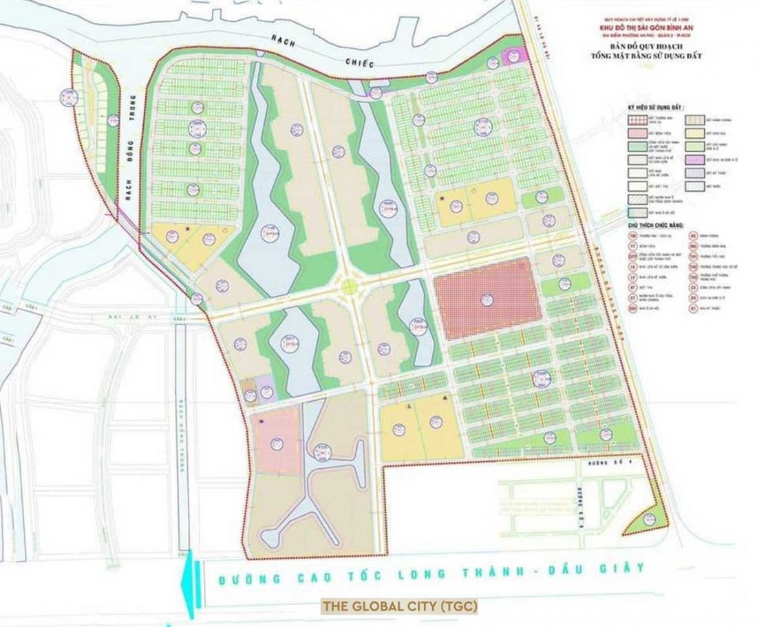
Tổng diện tích: 117,4 ha
Vị trí: đường Đỗ Xuân Hợp, phường Bình Trưng, TP.HCM
Loại hình: Khu đô thị
1. Vị trí dự án The Global City
The Global City tọa lạc tại đường Đỗ Xuân Hợp, phường Bình Trưng, TP.HCM (phường An Phú, TP Thủ Đức cũ).. Dự án nằm tiếp giáp với tuyến đường cao tốc Long Thành – Giầu Dây – TP Hồ Chí Minh.
2. Quy mô dự án The Global City
The Global City có tổng diện tích là 117,4 ha với mật độ xây dựng chỉ khoảng 41%. Dự án được chia làm 2 khu là khu nhà ở 22 ha và khu sân golf 92 ha.
Phối cảnh dự án
3. Sản phẩm dự án The Global City
Khu nhà ở 22ha bao gồm 193 căn biệt thự, nhà liền kề có sân vườn, 20 tháp chung cư với khoảng 10.000 căn hộ cao cấp và 80 căn penthouse. Các căn chung cư với diện tích đa dạng từ 50 - 150 m2.
Khu sân golf 92 ha bao gồm sân golf 18 lỗ, khu nghỉ dưỡng và khách sạn 400 phòng.
Dự án The Global City có quy mô rộng lớn và nằm cạnh sông Rạch Chiếc nên các cư dân tại đây được sở hữu các tiện ích như: bến du thuyền, trung tâm thương mại, công viên cảnh quan, hồ bơi, khu thể dục thể thao, gym, spa và hệ thống sân golf 18 lỗ…
4. Thông tin dự án The Global City
Chủ đầu tư dự án The Global City là Công ty Cổ phần Đầu tư và Phát triển Sài Gòn (SDI Corp), Masterise Homes là đơn vị phát triển của dự án, Công ty Cổ phần Xây dựng An Phong làm tổng thầu xây dựng dự án.
Công ty Cổ phần Đầu tư và Phát triển Sài Gòn (SDI Corp) được thành lập ngày 21/04/1999, đặt trụ sở chính tại số nhà A3, đường số 5, khu dân cư 10 ha, khu phố 3, phường An Phú, thành phố Thủ Đức, thành phố Hồ Chí Minh.
Doanh nghiệp hoạt động với tổng vốn điều lệ là 3.845 tỷ đồng theo thông báo thay đổi ngày 25/03/2020, được đại diện bởi bà Mai Thị Kim Oanh (chủ tịch HĐQT) và ông Bùi Đức Khoa (tổng giám đốc). Doanh nghiệp hoạt động chủ yếu trong lĩnh vực xây dựng nhà ở các loại và kinh doanh phát triển nhà ở.
Theo tìm hiểu, Khu đô thị Sài Gòn Bình An (The Global City) được UBND TP HCM chấp thuận chủ trương đầu tư cho Công ty TNHH Thương mại Xây dựng Sản xuất Thiên Hải cùng các công ty liên doanh khác để thực hiện dự án trên khu đất có tổng diện tích 120 ha nằm trên địa bàn phường An Phú vào tháng 1/1999.
Sau đó, dự án được các cơ quan chức năng chấp thuận thêm phần tiện ích sân golf An Phú dẫn đến phần diện tích dự án tăng lên 137 ha vào năm 2000.
Trên cơ sở này, Phó Thủ tướng Chính phủ Nguyễn Công Tạn đã ban hành quyết định thu hồi, giao đất cho SDI Corp để thực hiện dự án tại Quyết định 57/QĐ-TTg ngày 12/1/2001.
Dự án The Global City được khởi công ngày 18/03/2021 và dự kiến hoàn thành vào ngày 21/12/2025. Dự án có mức giá tham khảo trên thị trường từ 100 triệu/m2.
ĐỂ LẠI THÔNG TIN LIÊN HỆ - HOẶC GỌI HOTLINE: 0903.762.768 ĐỂ NHẬN THÔNG TIN TỪ CHỦ ĐẦU TƯ.
![[Nhận thông tin] Dự án The Global City](http://shop.cafeland.vn/cdn/shop/files/image-20220221165246-7.jpg?v=1761562158&width=1445)